Rif. 1251 - Vendita Villa -- Fano (Pesaro e Urbino)

Dove

Provincia


Località


Zona
Dati immobile

Contratto
Affitto Vendita

Categoria
Resid.le Comm.le

Tipo
Caratteristiche

Prezzo
Da a

Mq.
Da a

Camere
Da a
Opzioni di ricerca

Parole chiave

Ordinamento

Agenzia

Scheda Immobile rif. 1251 - Vendita Villa Fano (Pesaro e Urbino)

Richiedi Info
Agenzia: Dati principali:

Agenzia Affari Immobiliari M. G.


di Mercurio Giovanni
Via Dante Alighieri, 53/A
Fano
Tel.: 346.8449927
E-mail: mgimmobiliare2@gmail.com
# Riferimento: 1251
Contratto: Vendita
Tipo: Residenziale => Villa
Superficie: 186 mq
N° Camere: 3
N° Servizi: 3
Prezzo: EUR 470.000,00
Ubicazione:
Località: Fano (Pesaro e Urbino)
Zona: Periferia
Quartiere: --
Caratteristiche:
Classe Energetica: --
Giardino: Ascensore: Ammobiliato:
Piano: terra
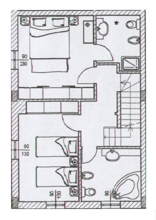
Descrizione generale:
VILLETTA COMPOSTA AL PIANO TERRA (MQ. 60) DA ANGOLO COTTURA/PRANZO, SOGGIORNO, BAGNO, RIPOSTIGLIO; AL PIANO 1� (MQ.60) DA CAMERA, CAMERETTA, 2 BAGNI; AL PIANO SOPPALCO (MQ.30) DA CAMERA; PORTICO MQ. 19, TAVERNETTA MQ. 36, 4 POSTI AUTO, GIARDINO MQ. 326. MQ. COMMERCIALI 209.